Ufficio in Posizione Prestigiosa a Modena!

In affitto
Modena (Prossimità centro) - Carlo Sigonio , 48
600 €
Ufficio
Categoria
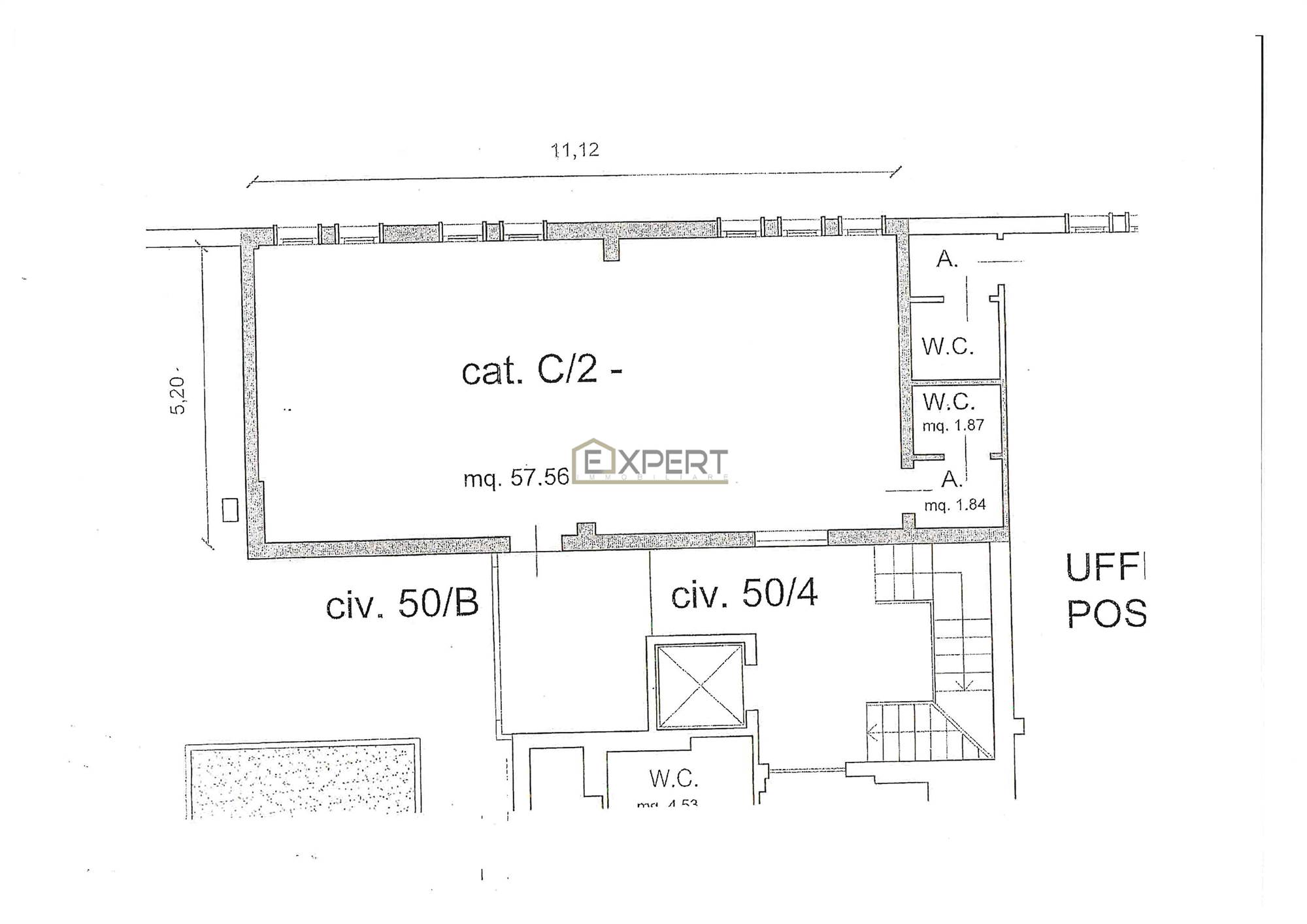
60
m2
1
Locali
1
Camere
1
Bagni
2
Posti auto
Descrizione
Cerchi uno spazio professionale in un contesto signorile? Abbiamo l'ideale per te!
✅ Ufficio al piano terra in un ambiente elegante e riservato
✅ Unico vano spazioso + bagno con antibagno
✅ Soffitti alti che conferiscono luminosità e aria di comfort
✅ Posto auto riservato per la tua comodità
✅ Situato nelle vicinanze di Piazzale Risorgimento, facilmente raggiungibile
IMMOBILE ACCATASTATO C/2
Classe energetica E
Non perdere questa occasione! Contattaci subito per maggiori informazioni e vieni a visitare il tuo nuovo spazio di lavoro!
550 euro mensili
Le Immagini sono fornite a solo scopo illustrativo e non costituiscono elemento contrattuale. Per maggiori informazioni contatta lo 059.224415 oppure via email expertimmobiliare@gmail.com La nostra agenzia immobiliare è specializzata nella locazione e compravendita di immobili a Modena e provincia. Tante altre disponibilità sul nostro sito.


Nonostante i nostri annunci siano compilati con la massima attenzione, potrebbero capitare però errori o imprecisioni in alcune descrizioni. Per essere certi della correttezza dei dati, Vi invitiamo quindi a verificarli con un nostro consulente. Invitiamo pertanto tutti i nostri clienti a prendere contatto telefonico o tramite mail per la verifica delle caratteristiche dell’immobile, informazioni contatti: 059.224415 oppure via email expertimmobiliare@gmail.com
L’agenzia non assume alcuna responsabilità relativamente ai dati dell’inserzione riportati sulla pagina del sito, avuto particolare riguardo alle specifiche che debbono considerarsi puramente indicativi essendo il sito in continuo aggiornamento.


Caratteristiche principali
Codice:
1327
Città:
Modena (Prossimità centro)
Categoria:
Ufficio
Locali:
1
Camere:
1
Bagni:
1
Mq:
60
Posti auto:
2
Classe energetica:
E
Stato Immobile:
Buono
Grado:
Signorile
Posizione:
Centro
Panorama:
Vista Aperta
Orientamento:
Nord Ovest
Lati Liberi:
2
Arredi:
Non Arredato
Riscaldamento:
Centralizzato
Tipo Riscaldam.:
Caldaia
Tipo Impianto:
Radiatori
Fonte Energetica:
Gas
Acqua Calda:
Centralizzata
Raffrescamento:
No
Infissi:
Acciaio Doppio Vetro
Serramenti:
Buono
Persiana:
Personalizzato
Pavim. Cucina:
Ceramica
Pavim. Bagno:
Ceramica
Pavimento:
Ceramica
Cauzione:
Tre Mesi
Canoni Anticipati:
Un Mese
Tipo Contratto:
6+6 Anni
Accesso Disabili:
Nessuna Barriera
Accesso interno disabili:
Pieno accesso
Tipo Registr.:
Tradizionale
Isolamento:
Non presente
Isolamento termico:
Nessuno
Isolamento acustico:
Isolamento pareti
Impianto d’irrigazione:
No
VMC:
No
Accessori
Aria Condizionata
Doppi Vetri
Parco Condominiale
Passaggio Automobilistico
Passaggio Pedonale
Portineria/Custode
Rete Dati
Mappa
Video
Planimetrie
Ti consigliamo anche
In Affitto
Zona san Faustino affittasi ufficio
Zona san Faustino affittasi ufficio
1.000 €
Ufficio
Modena
85
m2
4
Locali
In Affitto
Affittasi negozio in Zona piazza risorgimento
Affittasi negozio in Zona piazza risorgimento
2.450 €
Ufficio
Modena (San Faustino)
300
m2
2
Locali
1
Camere
2
Bagni
In Affitto
Viale Corassori - Studio/Ufficio ampio e luminoso
Viale Corassori - Studio/Ufficio ampio e luminoso
800 €
Ufficio
Modena
150
m2
5
Locali
4
Camere
2
Bagni
In Affitto
ufficio di grandi dimensioni
ufficio di grandi dimensioni
2.750 €
Ufficio
Modena (Zona Viali)
400
m2
15
Locali
12
Camere
2
Bagni
Richiedi informazioni
Invia
Cookie preference