Villa Sale in Modena (MO) Collegara

for sale
Modena (San Damaso) - Collegara
820,000 €
Villa
Category
350
m2
10
Locals
5
Bedrooms
4
Bathrooms
1
Garages
2
Car places
Description
The property is located in a prestigious residential area in San Damaso, with ample green spaces and easy access to urban services.
Type: Independent villa, completely renovated, with a private garden of about 400 square meters.
Structure and internal distribution:
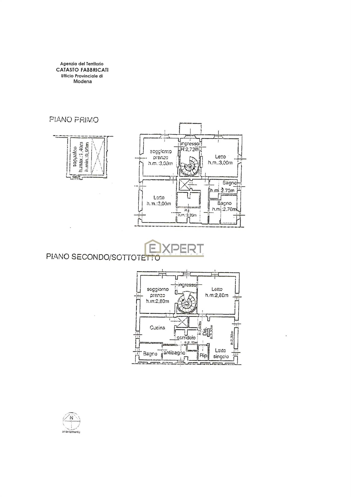
Ground Floor (GF): living area consisting of a large living room, eat-in kitchen, storage room, laundry room, and bathroom, with direct access to the private garden.
First Floor (1st): sleeping area with three bedrooms and two bathrooms, one of which is en-suite, accessible via internal staircase and elevator.
Second Floor (2nd): apartment with entrance, living room, kitchen, two bedrooms, anteroom, and bathroom, ideal for independent use or guest house.
Accessories and finishes:
Garage and cellar in a separate structure, with capacity for two cars in the garage and storage space in the cellar.
Independent heating, with ducted air conditioning system and split on the second floor.
Double glazed windows for improved acoustic and thermal insulation.
Armored door for increased security.
Presence of an elevator connecting the main floors.
Current energy class under evaluation (class D).
Property condition: completely renovated, with high-end finishes.
Eat-in kitchen.
Total area: about 350 square meters distributed over multiple levels.
Number of rooms: 10 Number of bedrooms: 5 Number of bathrooms: 4
Garage: 1 large size External parking spaces: 1
Images are provided for illustrative purposes only and do not constitute a contractual element. For more information, contact 059.224415 or via email expertimmobiliare@gmail.com Our real estate agency specializes in the rental and sale of properties in Modena and the province. Many other options available on our website.
The agency assumes no responsibility for the data reported on the website page, with particular regard to the specifics that should be considered purely indicative as the site is constantly updated. We therefore invite all our customers to contact us by phone or email to verify the characteristics of the property, contact information: 059.224415 or via email expertimmobiliare@gmail.com
Primal Features
Code:
1278.
City:
Modena (San Damaso)
Category:
Villa
Locals:
10
Bedrooms:
5
Bathrooms:
4
Sqm:
350
Garages:
1
Car places:
2
Sqm garden:
400
Balconies:
1
Energetic class:
D
Property Conditions:
Renovated
Rank:
Elegant
Position:
Suburb
View:
Open View
Orientation:
North East
Free Sides:
3
Garden:
Private
Furniture:
Possibility
Type living:
Salon
Kitchen:
Eat-In Kitchen
Heating:
Independent
Heating Type:
Boiler
Energy source:
Gas
Hot Water:
Independent
Cooling:
Centralized
Fixtures:
Wooden double glazed
Doors:
Excellent
Blind:
Wood Blinds
Floors Living Room:
Parquet
Accessories
Alarm
Air Conditioning
Cupboard
Elevator
Handicap Bathroom
Strongbox
Electric gate
Double Glazing
Optical Fiber
Photovoltaic
Satellite System
Laundry
Smoking Room
Solar Panels
Park Condominium
Passing Car
Pedestrian Crossing
Armored door
Network Data
Closet
Outdoor Tables
Video Intercom
Video Surveillance
Mosquito Net
Map
Video
Floorplans
We also recommend
for Sale
House of Character Sale in Modena (MO) via casali
House of Character Sale in Modena (MO) via casali
480,000 €
House of Character
Modena (Baggiovara)
750
m2
16
Locals
Information request
Send
Cookie preference