Attic For rent in Modena (MO)

for rent
Modena (San Faustino) - Viale degli Schiocchi
2,000 €
Attic
Category
100
m2
5
Locals
3
Bedrooms
2
Bathrooms
1
Car places
Description
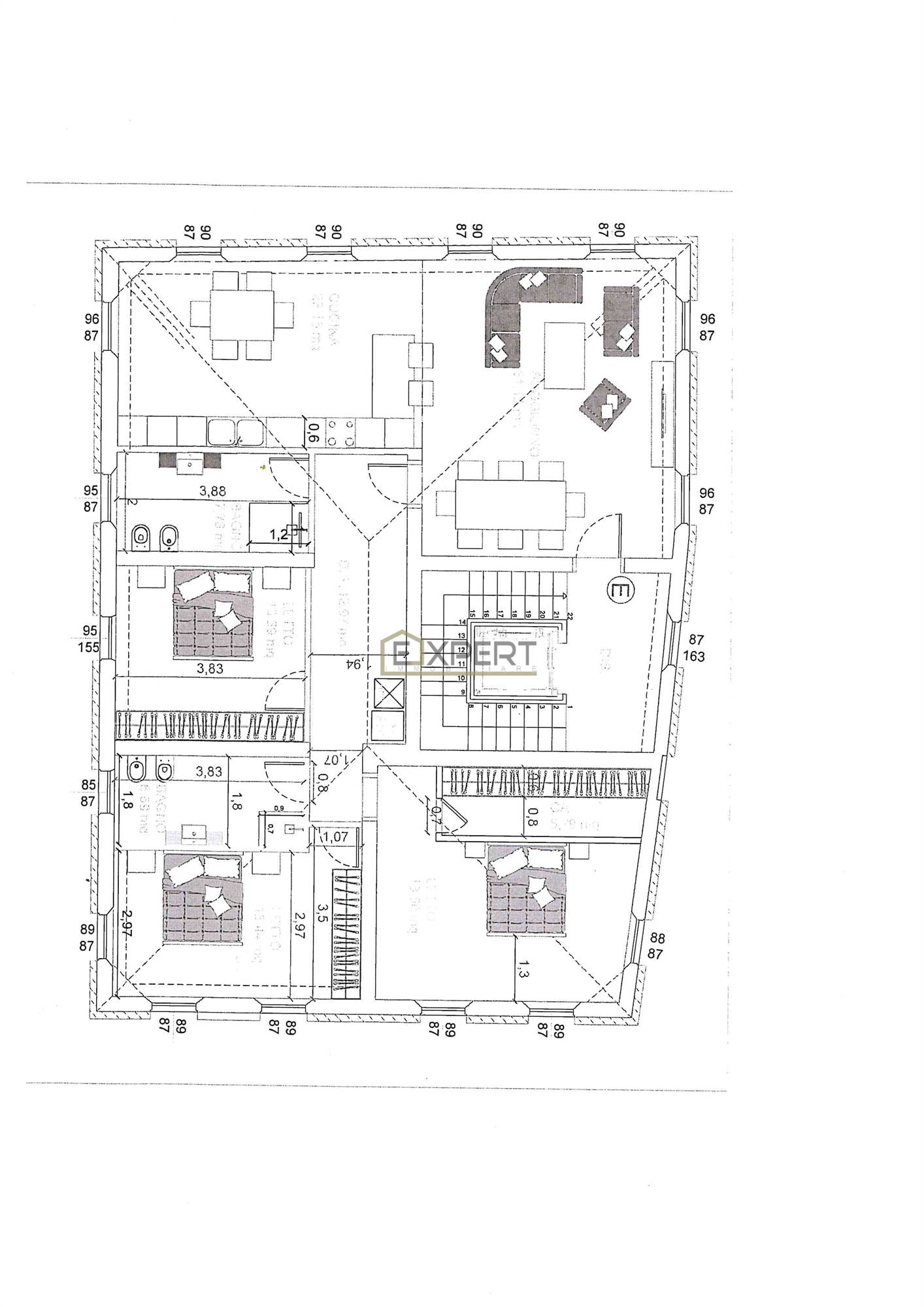
For rent: new Class A4 apartment, furnished with new furniture, on the second attic floor consisting of: living room with kitchenette, 3 bedrooms, 2 bathrooms, and storage/laundry room. Parking space in the inner courtyard.
The apartment in the villa is divided into five residential units, each characterized by a modern and functional style, located near Viale Italia and Via Giardini in Modena, designed with particular attention to energy efficiency, classified as Class A.
Located in a quiet residential area, the villa offers the convenience of easy access to services such as schools, supermarkets, parks, and transportation, making it ideal for families and professionals.
This villa represents an excellent opportunity for those looking for a modern and sustainable home, without sacrificing comfort and style.
DELIVERY JANUARY 15, 2025.
The agency assumes no responsibility for the data in the listing on the website page, with particular regard to the specifications which should be considered purely indicative as the website is constantly updated. We therefore invite all our clients to contact us by phone or email for verification of the property's characteristics, contact information: 059.224415 or via email expertimmobiliare@gmail.com
Established real estate agency, with a decade of experience developed in Modena and the Modenese hinterland. We guarantee the assistance of qualified professionals who will assist you in choosing your ideal home, to buy, sell, or rent.
We provide free evaluations of your properties for the right definition of the best market price. Contact us for any type of real estate consultation.
Primal Features
Code:
A 1215.
City:
Modena (San Faustino)
Category:
Attic
Locals:
5
Bedrooms:
3
Bathrooms:
2
Sqm:
100
Car places:
1
Floor:
2
Energetic class:
A4
Life Style:
Quiet
Property Conditions:
New
Rank:
Elegant
Position:
Center
View:
Open View
Orientation:
North West South
Free Sides:
4
Garden:
Common
Furniture:
Furnished
Type living:
Salon
Kitchen:
View Kitchen
Heating:
Independent
Heating Type:
Boiler
Type of heating system:
Floor heating
Energy source:
Gas
Hot Water:
Independent
Cooling:
Split
Fixtures:
PVC double glazed
Doors:
New
Blind:
Wood Blinds
Floors Living Room:
Parquet
Floors Bedrooms:
Parquet
Floors Kitchen:
Parquet
Floors Bathroom:
Ceramic
Caution:
Three Months
Advance Rent:
One Month
Type of Contract:
3+2 Years
Access for disabled:
No barrier
Disabled internal access:
Full access
Registr. Type:
Traditional
Insulation:
Present
Thermal insulation:
External insulation
Acoustic insulation:
Wall insulation
For residents only:
Yes
Accessories
Air Conditioning
Cupboard
Elevator
Electric gate
Double Glazing
Optical Fiber
Park Condominium
Passing Car
Pedestrian Crossing
Armored door
Closet
Video Intercom
Map
Video
Information request
Send
Cookie preference