Flat For rent in Modena (MO) Via Rismondo

for rent
Modena (Centro storico) - Via Rismondo
1,200 €
Apartment
Category
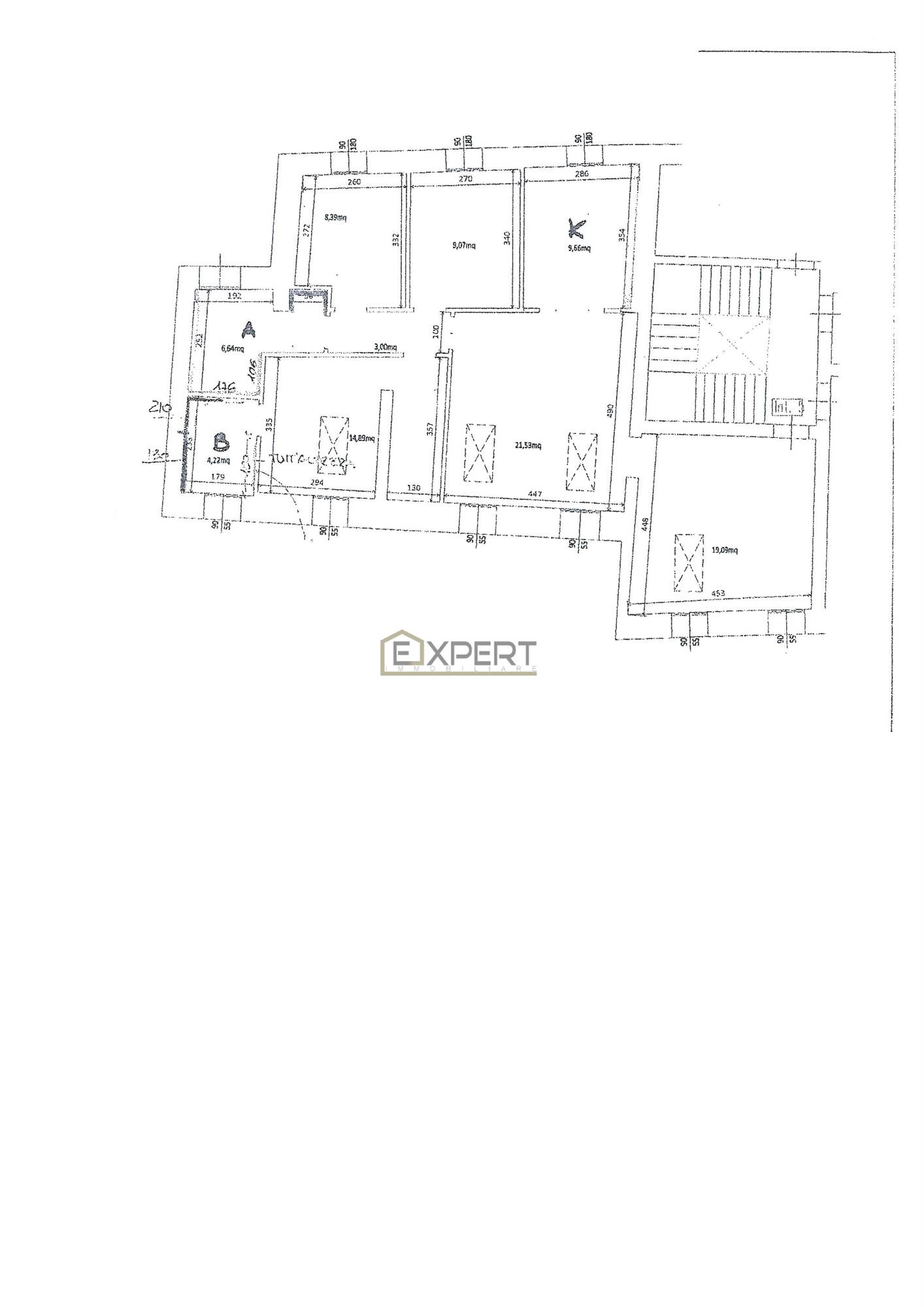
100
m2
6
Locals
3
Bedrooms
Description
This spacious and well-appointed flat is available for rent in the bustling city of Modena, Italia. Situated in a prime location, the property offers convenient access to a variety of amenities and services. The flat features six rooms, providing ample living space for residents. With a total area of 100 square meters, the property is well-suited for comfortable living. Additionally, the flat boasts an energetic class B rating, ensuring energy efficiency and cost savings for tenants. Priced at 1200 EUR, this property presents a fantastic opportunity for individuals seeking a quality rental in Modena. Contact us today to schedule a viewing and secure this desirable living space.
Primal Features
Code:
1351
City:
Modena (Centro storico)
Category:
Apartment
Locals:
6
Bedrooms:
3
Sqm:
100
Energetic class:
B
Life Style:
Quiet
Property Conditions:
New
Rank:
Elegant
Position:
Inner City
View:
Open View
Orientation:
South West
Free Sides:
2
Garden:
No
Furniture:
Furnished
Type living:
Salon
Kitchen:
Eat-In Kitchen
Heating:
Central
Heating Type:
Boiler
Type of heating system:
Floor heating
Energy source:
Gas
Hot Water:
Independent
Cooling:
Split
Fixtures:
Wooden double glazed
Doors:
New
Blind:
Wooden blind
Floors Living Room:
Parquet
Floors Bedrooms:
Parquet
Floors Kitchen:
Parquet
Floors Bathroom:
Parquet
Caution:
Three Months
Advance Rent:
One Month
Type of Contract:
4+4 Years
Access for disabled:
No
Disabled internal access:
Not accessible
Registr. Type:
Traditional
Insulation:
Not present
Thermal insulation:
None
Acoustic insulation:
None
For residents only:
No
Irrigation system:
No
MV:
No
Accessories
Air Conditioning
Cupboard
Elevator
Passing Car
Pedestrian Crossing
Network Data
Video Intercom
Mosquito Net
Map
Video
Floorplans
We also recommend
for Rent
Flat For rent in Modena (MO) Via Farini
Flat For rent in Modena (MO) Via Farini
2,400 €
Apartment
Modena (Centro storico)
100
m2
4
Locals
2
Bedrooms
2
Bathrooms
for Rent
Flat For rent in Modena (MO) Via Carlo Sigonio 50
Flat For rent in Modena (MO) Via Carlo Sigonio 50
1,150 €
Apartment
Modena (Prossimità centro)
100
m2
4
Locals
2
Bedrooms
2
Bathrooms
1
Garages
for Rent
Flat For rent in Modena (MO) Via Donzi 10
Flat For rent in Modena (MO) Via Donzi 10
1,800 €
Apartment
Modena (Centro storico)
130
m2
4
Locals
2
Bedrooms
2
Bathrooms
for Rent
Apartment for rent in Modena
Apartment for rent in Modena
2,500 €
Apartment
Modena (Università/Policlinico)
120
m2
5
Locals
3
Bedrooms
2
Bathrooms
1
Garages
Information request
Send
Cookie preference